Deutschland, Berlin

Ex-Personalwohnung geliftet

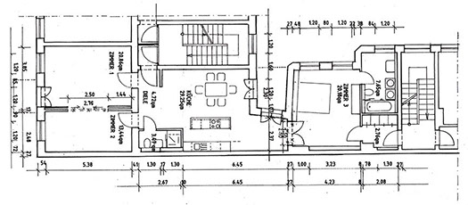
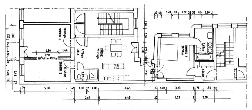
Im Dachgeschoss eines Gebäudes aus dem 19. Jahrhundert gab es im Vorderhaus eine Arbeiterwohnung mit 4-Zimmern von 70 qm und im Seitenflügel eine 2-Zimmer-Wohnung von 32 qm, die zu einer  Wohnung mit einer großzügigen Raumfolge ohne Flure zusammengefasst wurde. Trotz mehrerer alter Schornsteine und Leitungssträngen, die berücksichtigt werden mussten, konnte eine neue Raumgliederung geschaffen werden, die modernen Wohn- und Lebensbedürfnissen in der Stadt gerecht wird.

 

Tageslicht von drei Seiten, neue Balkone und ein komplett neuer Ausbau entsprechen heutigem Standard in Bezug auf Dämmung, Ausstattung und Sicherheit.

Schon der neu gestaltete Wohnungseingang im Treppenhaus mit der alten Eingangstür als Windfang signalisiert Modernität, ohne den Charakter des Altbaus zu verleugnen.

Gästebad

Essplatz und Küche

neuer Grundriss